當前的位置>>首頁>>>> 60立方液化氣儲罐價格
60立方液化氣儲罐價格
新聞導讀:
本文章發表于:m.topshu.cn 作者:admin 發布時間: 2019-12-03
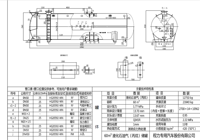
液化氣儲罐設備用于貯存液化石油氣介質,具有承壓、密閉的特點,在使用過程中還要接受檢驗部門的檢查。儲罐的規格型號繁多,60立方液化氣儲罐在一些中等規模的液化氣站中經常用到,根據直徑不同主要分為直徑2700mm,直徑2800mm二種。主要參數如下:
1、直徑2700mm的材質Q345R,筒體厚度14mm,封頭16mm,總長10.9米,罐體總重量12.75噸,鞍座間距為7000mm,目前價格10.6萬元。
2、直徑2800mm的儲罐材質Q345R,筒體厚度16mm,封頭厚度16mm,罐體長度10.2米,高度3.4米,總重量為13.6噸,可以承載20噸液化石油氣,價格11.2萬元。



60立方液化氣儲罐設計圖紙:

60立方液化氣儲罐一般做成直徑2700mm,因個別用戶特別要求,可另行設計,鞍座的間距也可調整,液相和氣相的管口可選擇DN50或者DN80。儲罐產品也會隨著原材料和法蘭配件等價格變化有所波動,具體電話聯系。
上一篇 : 32立方液化氣儲罐價格
下一篇 : 蕪湖試點“LNG罐式集裝箱”儲備調峰
下一篇 : 蕪湖試點“LNG罐式集裝箱”儲備調峰



